
DSR The Address – 2, 3 & 4 BHK Apartments in Dommasandra, Bangalore for a Peaceful Lifestyle
DSR The Address by DSR Infra is a thoughtfully crafted residential project offering premium 2,3 & 4 BHK apartments in Dommasandra, one of the most well-connected and serene locations in East Bangalore. Designed for families who value peace, comfort, and connectivity, DSR Address redefines modern urban living.
Set amidst a vibrant neighborhood surrounded by top-rated schools, reputed hospitals, IT hubs, and recreational zones, this gated community offers the best of both worlds—tranquility at home and convenience around every corner. Whether it’s your child’s education, your daily commute, or weekend entertainment, everything is just a short drive away.
The apartments at DSR The Address Dommasandra are built with attention to detail, blending functionality with elegance. Each home is designed to offer ample natural light, privacy, and superior ventilation. With modern architecture and premium finishes, it is a place where comfort meets aesthetics.
Residents also enjoy a host of lifestyle amenities like a well-equipped gym, clubhouse, landscaped gardens, kids’ play areas, and more—making it easy to relax, recharge, and build meaningful community connections.
Whether you seek peaceful evenings or active weekends, DSR The Address offers the perfect backdrop for a balanced life. Come home to a space where your family can thrive and your dreams can unfold—come home to DSR The Address.
DSR THE ADDRESS IMAGES



DSR THE ADDRESS CONFIGURATION
| Location | Dommasandra |
| Total Land | 13.5 Acres |
| No.of Units | 1372 |
| Towers & Blocks | 6 Towers G + 30 FLOORS |
| Unit Variants | 2,3,4 BHK |
| Possession Time | December 2028 |
| Price(Approx.) | Rs 1.1 Cr – 2.7 Cr Onwards |
| UNITS | SBA |
|---|---|
| 2 BHK | 1149 to 1283 Sq.Ft. |
| 3 BHK | 1682 Sq.Ft. |
| 4 BHK | 2721 to 2735 Sq.Ft. |
DSR THE ADDRESS LOCATION
DSR The Address Location Address : Kachamaranahalli, Thigala Chowdadenahalli, Bengaluru, Karnataka 562125
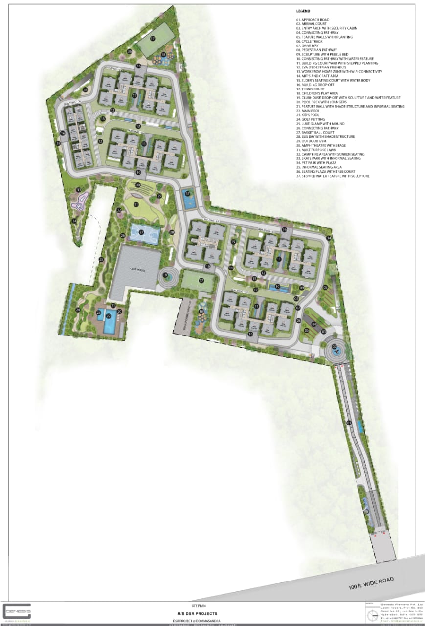
DSR THE ADDRESS MASTER PLAN

DSR THE ADDRESS SPECIFICATION
| STRUCTURE | RCC ‘Shear Wall Structural System’ to withstand Wind and Seismic loads as per the relevant IS Codes. |
| DOORS | Main Door & Internal Doors: Factory Moulded Engineered Wood door frame, flush door shutter with laminated finish on both sides with hardware of reputed make; Toilets & Utility Doors: Factory Moulded Engineered Wood door frame and flush door shutter with water proofed phenol bonded resin with enamel finish over resin on one side & laminated finish on the other side with hardware of reputed make. |
| FLOORING | Vitrified Tiles in Bedrooms, Living, Dining & Kitchen; Anti-skid Ceramic Tiles in Bathrooms, Balconies, Utility; Vitrified/Ceramic tile flooring in Corridor; Polished Kota/Tandoor Stone/Granite in Staircases. |
| PLUMBING & SANITARY | Ceramic tiles dado of reputed make up to door height; Wash Basin with half pedestal of Vitra or equivalent make with basin mixer; EWC with concealed Flush tank/Flush valve of Vitra or equivalent make; Hot and Cold concealed single lever diverter with head shower and hand shower; Provision for geyser in all bathrooms; All C.P. fittings are chrome plated Vitra or equivalent make. |
| ELECTRICAL | Concealed copper wiring of Polycab/Anchor or equivalent make; Power outlets for Air-Conditioners in all bedrooms; Power outlets for geysers in all bathrooms; Power outlets for chimney, refrigerator, microwave oven, mixer grinder and Water purifier in kitchen; Provision for television in Drawing/Living and Master bedroom; Miniature Circuit Breakers (MCB) & ELCB for each distribution boards of Schneider’s or equivalent make; Elegant designer modular electrical switches of Anchor/Schneider’s or equivalent make. |
| SECURITY | Intercom facility to all units connecting security, clubhouse and other common areas. Standalone video door phone for every unit of reputed brand. CCTV surveillance at project entry, exit and driveways. |
DSR THE ADDRESS AMENITIES
| GYM | CLUB HOUSE | SWIMMING POOL | INDOOR GAMES AREA |
| KIDS PLAY AREA | MINI THEATRE | SKATING RINK | MULTI PURPOSE HALL |
| JOGGING TRACK | MULTIPLE SPORTS COURTS | AMPHI THEATRE | DOG PARK |
About Builder
DSR Group is one of the top builders in South India namely, Bengaluru, Hyderabad and Chennai. It was established in 1988 with the vision of transforming the real estate industry. Today, DSR Group’s repertoire has a wide array of exclusive real estate projects such as, villas, luxury homes, gated communities, corporate offices and many more. Each of its properties is designed to perfection by a team of well skilled architects and constructed to last generations.
Customer satisfaction is the cornerstone of our company’s philosophy. This is why we constantly strive for perfection in our service by understanding the needs of the customer and provide innovative and customized real estate solutions.


